返回
鳯凰山壹號

鳯凰山壹號

情侶北路399號鳳凰山壹號
  • 建築面積:9.1萬平方米
  • 樓盤數:403
詳細介紹
鳳凰山一號位於珠海情侶北路,三面環山、一面向海,占山海、城市、溪湖、島嶼5重自然資源。園林規劃上將一線海景、自然山體、原生山泉、原生林木四大資源在設計中充分加以利用,打造出以水景為主元素,以靜潭、湧泉、跌水、山澗等不同水體性格為第二元素的各級空間區域,營造不同空間。建築規劃上尊重環境與山形,依坡地佈局,保證戶戶景觀最大化。社區配備雙會所雙主題公園:商務會所(鳳凰會所),休閒會所(半山會所);體育主題公園,原生態主題公園,另設置鳳凰山登山道及後山果園。專案曾榮獲《全球人居環境建築設計獎》、《3A住宅性能初審認證》、《中國城市別墅金獎》。攜手全球500強企業的物管公司-----世邦魏理仕,為業主提供可靠、細則入微的物業服務。專案在建築和園林設計上,充分利用現有地形地勢,依山而建,最大限度的利用海景資源。 鳳凰山一號已榮獲聯合國頒發的“全球人居環境設計獎”和“中國城市別墅獎”,同時已通過國家建設部“3A”住宅性能認定初審。即將推出高層涵蓋100平米經典平層,142-223平米大平層,215-245平米錯層及230-260平米複式。 鳳凰山一號跨界別墅簡介: 何謂跨界? l 跨界是指跨越多個行業、領域,將不同風格、不同特色的元素相結合而創造出的新型產品與文化風尚。跨界現在已經成為國際最潮流的字眼,從傳統到現代,從東方到西方,從跨界車到跨文化企業管理,跨界的風潮愈演愈烈,已代表一種新銳的生活態度和審美方式的融合。 l 典型跨界實例:跨界車。賓士、寶馬、奧迪等高級轎車品牌均推出了融合轎車、旅行車和SUV三者風格的跨界車型,如賓士R系、奧迪Q5、寶馬X系等,均成為新一代豪華車的典範。另外還有跨界音樂(陳美、古典辣妹、莎拉布萊曼等)、跨界時尚(蘭博基尼手機、阿瑪尼版高級CLK敞篷跑車等)。 對樓盤感興趣即與我們地產代理聯繫直撥:62820833 14714945189 或點擊以下連結 Whatsapp:https://api.whatsapp.com/send?phone=85362820833
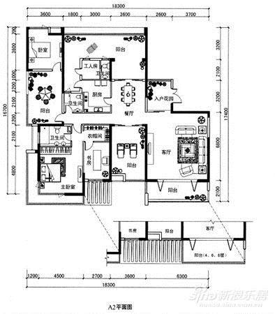
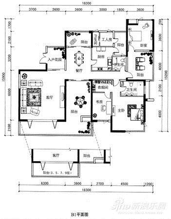
間隔表及平面圖